Трехкомнатная квартира 57,80 м2 по ул. Маршала Чуйкова 30 за 8399000 руб.

Трехкомнатная квартира по ул. Маршала Чуйкова, 30 в Казани
Цена 8 399 000 р. (145 311 р./м2)
Подать заявку на ипотеку
Район Новосавиновский район
Адрес Маршала Чуйкова, 30
Этаж 3/5
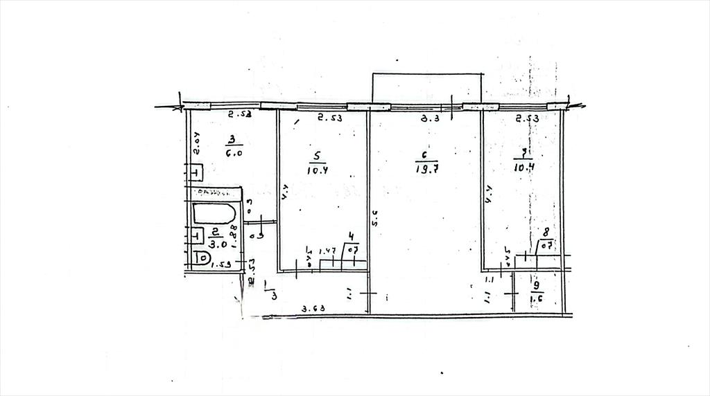
Площадь общая 57,8 м2, жилая 40,5 м2, кухни 6 м2
Кол-во комнат Трехкомнатная
Компания ГиперДом предлагает Вашему вниманию следующий объект: Продаю трёхкомнатную квартиру в Ново-Савиновском райне, ул. Маршала Чуйкова, д. 30 , расположенную на третьем этаже пятиэтажного панельного дома. Общая площадь 57,8 кв. м., жилая - 40,5 кв. м. ( 10,4 + 19,7+ 10,4), кухня - 6 кв. м.(колонка).Балкон застеклён и обшит. Санузел совмещён. Квартира в хорошем состоянии. Окна все пластиковые. В доме был капитальный ремонт. Заменены трубы, радиаторы. Дом расположен вдали от дороги. Тихий зелёный двор. Два взрослых собственника. Без обременений. Рядом детский сад, школа, остановки, различные магазины. Ближайшие улицы:Мусина, Ф. Амирхана, Х. Ямашева. Ипотека проходит. Код объекта: 1081081.
Описание дома
Этажность дома 5
Объявление № 23369593
Дата подачи:
13 октября 2025 г. 2:58
Дата обновления:
13 октября 2025 г. 2:58
Просмотров 1 Хотите продать быстрее?

Продавец
Агентство недвижимости:
Наталья
email: Agentstvo@giperdom.com>
Показать номер телефона
Пожаловаться
Комментарии:
Добавить